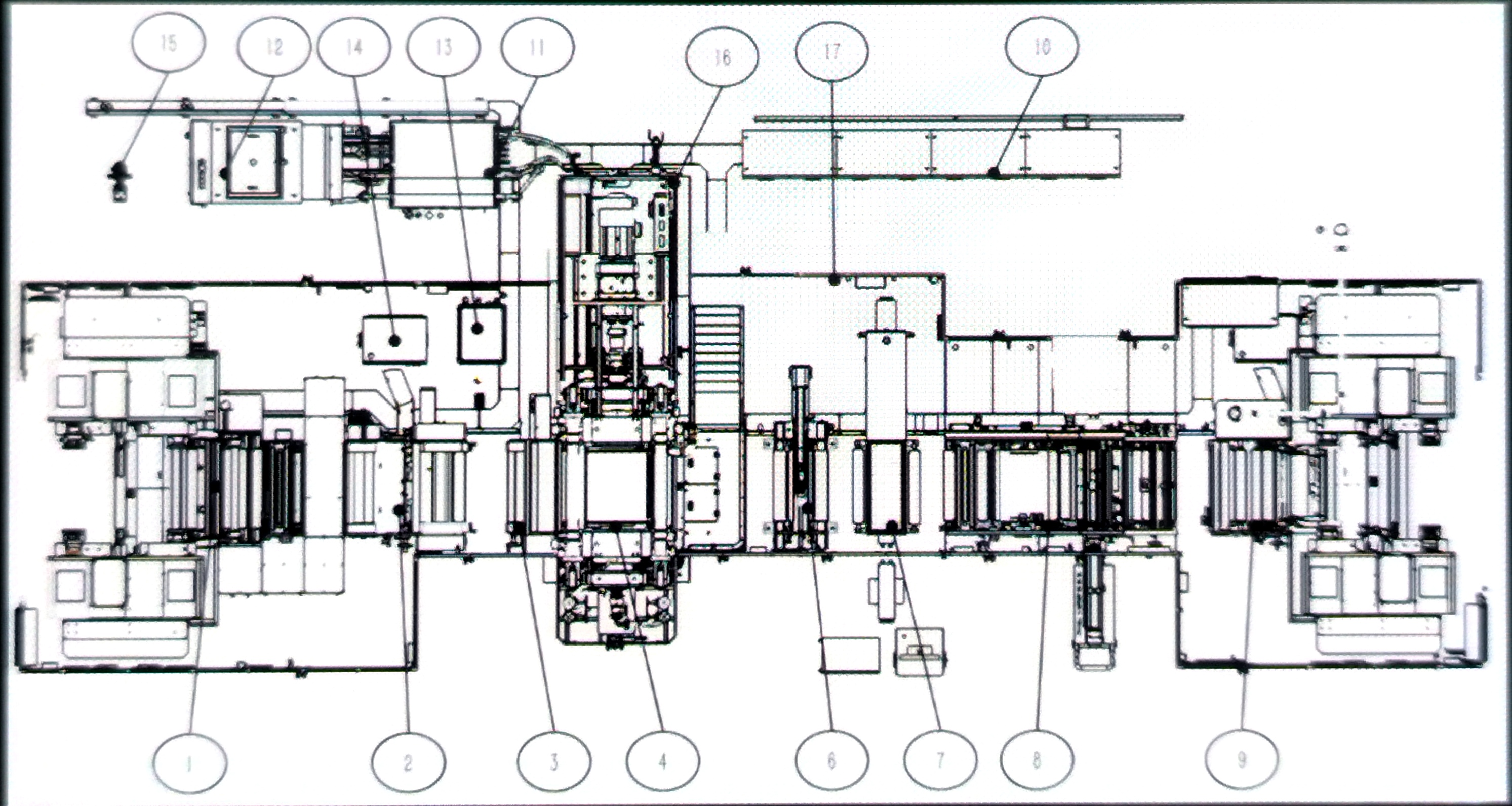
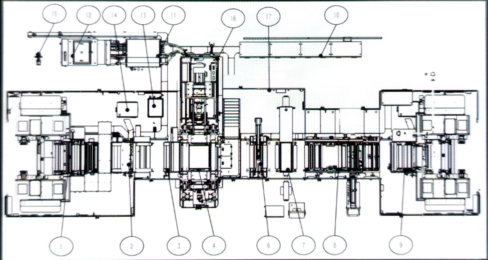
1.2 Explication du déroulement du calandrage :
Légende de la ligne de calandrage :
1. Unité de déroulement , 2. Unité d'aplatissement avant, 3.Unité de préchauffage, 4. Module de Calandrage, 5. Unité d'aplatissement arrière, 6. Unité de refroidissement, 7. Unité de mesure d'épaisseur laser, 8. Unité de refendage 1 , 9. Unité d'enroulement, 10. Armoire de commande et conduits de câbles, 11. Système hydraulique, 12. Tuyaux de chauffage, 13. Tuyaux de refroidissement, 14. Chauffage de languettes, 15. Tuyaux de dépoussiérage, 16. Capot de l'hôte, 17. Petit environnement.
1 : Ce sont une unité de coupe qui transforme une bobine large en plus étroite (côté droit).
|
|
![IMG_20250416_160210[1].jpg](https://tmsi-aesc.homelinux.com/uploads/images/gallery/2025-04/scaled-1680-/img-20250416-1602101.jpg)

