Skip to main content

01. Dessins Techniques : Généralités

OBJECTIFS 
Décrire les principales familles de dessins techniques. 
Préciser les échelles et les formats utilisés ainsi que les divers éléments 
indispensables aux·indications : cartouche, nomenclature, types de traits, 
écritures .... 
Indiquer le matériel de base du dessin industriel manuel et les principales 
techniques de tracé. 
Le dessin industriel ou technique, manuel ou assisté (DAO , CAO, etc.), est l'outil graphique 
le plus utilisé par les techniciens et les ingénieurs pour passer de l'idée (l 'étude) à la réalisation 
(fabrication) d'un objet ou produit. C'est un langage universel, rigoureux, dont les règles pré-
cises sont normalisées internationalement (ISO : International Standard Organisation). 
La vision dans l'espace, c'est-à-dire la capacité à voir ou à imaginer un objet à trois dimensions 
dans l'espace, est une formidable aide à la création pour l'esprit et le cerveau humain. Cette 
qualité fondamentale n'est pas un don du ciel, elle doit être travaillée, développée et cultivée 
par des exercices graphiques répétés et suffisamment nombreux. L'apprentissage du dessin industriel permet d'acquérir cette vision. Terminologie : NF EN ISO 10209 

Remarques : les dessins techniques des pièces constituent les documents les plus importants pour la construction, le développement et la production ; pour l'assemblage et pour l'utilisation des produits finis . 

I - Principaux types de dessins techniques

Les dessins techniques ou industriels se divisent en plusieurs familles complémentaires :
Les schémas : ils sont tracés à partir de familles de symboles normalisés. Chaque symbole 
représente ou schématise un organe ou un composant particulier. Ils permettent de représenter, de manière simplifiée et condensée, des installations ou des systèmes techniques plus ou moins complexes. 
Exemples : schémas électriques, électroniques, hydrauliques. 
Les dessins d'ensemble : ils permettent la représentation non schématique, plus ou moins 
détaillée, à une certaine échelle, d'installations, d'immeubles, de machines, de systèmes techniques variés constitués de divers éléments de base (composants, pièces par exemple). 
Les dessins de définition : complémentaires des précédents, ils définissent complètement et totalement chacun des éléments de base d'un produit et les exigences auxquelles il doit satisfaire. Ils servent souvent à établir des contrats entre concepteurs et réalisateurs (cahier des charges). 
Les dessins de détail d'exécution : généralement obtenus à partir des dessins de définition, ils donnent les indications nécessaires à la réalisation d'un produit ou de l'un de ses éléments de base. 
Exemples : dessin de fabrication, d'opération, d'implantation. 
Les dessins d'avant-projet, ou de conception, et les dessins de projet : ce sont des 
dessins d'ensemble. Les premiers permettent de proposer et d'élaborer des solutions possibles 
au moment de la conception d'un produit. Les seconds servent à décrire et préciser tous les 
détails de la solution finalement choisie pour réaliser le produit. 

 

II - Échelles 

Lorsque les objets sont grands (immeubles, bateaux, automobiles) ou petits (montres, circuits électroniques, par exemple) il est nécessaire de faire des réductions ou des agrandissements pour les représenter. 
L'échelle 1 (ou 1 : 1) présente l'avantage de visualiser l'objet à définir en vraie grandeur, sans réduction et sans agrandissement. Les échelles 1 : 2 et 2 : 1 peuvent apporter des impressions trompeuses en conception. 

image.png

 

III - Formats normalisés 

La série A (A0, Al , A2, A3, A4), normalisée ISO, est universellement utilisée. Les formats A3 à A0 doivent être utilisés horizontalement et le format A4 verticalement (ISO 5457), cartouche en bas à droite, marge gauche à 20 mm, autres marges à 10 mm. Le format A4 (210 x 297 mm) correspond à la taille d'une feuille de papier standard type courrier. Le format A3 (420 x 297) se déduit du A4 en multipliant la plus petite dimension par deux (210 x 2 = 420) . De même le A2 (594 x 420) s'obtient en multipliant la plus petite dimension du A3 par 2 (297 x 2 = 594) et ainsi de suite pour les autres formats. Pour chaque format le rapport longueur sur largeur est égal à J2 ("' 1.414) . 

image.png

image.png

 

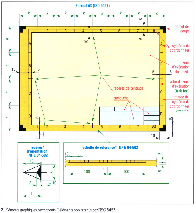
IV - Éléments graphiques permanents (NF EN ISO 5457) 

Les éléments graphiques permanents permettent de cadrer le dessin, repérer certains détails, manipuler, plier et couper les formats. 

image.png

a) Le cadre : il délimite la zone d'exécution du dessin. Dessiné en trait continu fort , il fait apparaître une marge sur tout le contour et délimite la zone d’exécution du dessin . 
b) Les repères : ils sont situés dans la marge entre le cadre et le bord du dessin. 
- Les repères de centrage : au nombre de quatre, ils indiquent les axes de symétrie du format et sont généralement matérialisés par un trait continu fort (forme libre de choix). 
- Les repères d'orientation : au nombre de deux sur les supports pré-imprimés, ils se superposent aux repères de centrage. Une fois le dessin terminé il ne doit rester qu'un seul repère, celui orienté vers le dessinateur ou le lecteur. Ils ne sont pas retenus par l'ISO 545 7. 
c) Le système de coordonnées : à partir de lettres (A,B,C. .. ), de haut en bas, et de chiffres (1,2,3 ... ), de gauche à droite, il permet de localiser les différentes parties de la zone dessinée. Le nombre de coordonnées, fonction du format, divisible par 2, est indiqué page 7. Hauteur des caractères : 3,5 mm. 
d) La graduation centimétrique de référence : non chiffrée (longueur minimale 200 mm, largeur maximale 5 mm), elle peut figurer dans la marge près du cadre (non retenue par ISO 545 7) . 
e) Les onglets de coupe : placés aux quatre coins du dessin, ils facilitent la découpe des reproductions au format voulu et sont matérialisés par deux rectangles 10 x 5 se chevauchant. 

V- Cartouche

Le cartouche est la carte d'identité du dessin ou document. Son emplacement dans le format est indiqué figure 1 ; le sens de lecture du dessin est celui du cartouche. 
Plus complet en gestion numérisée, il rassemble les renseignements essentiels : données d'identification (propriétaire, numéro d'identification, indice de révision, date d'édition, numéro partie, langue ... ), titre et données administratives (auteur, département, référence technique, visé par; type, stade et format du document. ..). 

image.png

VI - Nomenclature

Liée à un dessin d'ensemble elle dresse la liste complète de tous les éléments constitutifs (par exemple, pièces, composants) du système dessiné. Chaque élément est répertorié, numéroté, classé et tous les renseignements nécessaires le concernant sont indiqués. 

image.png

La présentation proposée, en cinq colonnes, est classique. La première colonne reprend les repères, ou chiffres, indiqués sur le dessin d'ensemble par ordre croissant de bas en haut. Chaque pièce ou élément dessiné doit avoir un repère, sauf dans le cas des pièces identiques. La seconde colonne indique le nombre de pièces identiques. Les autres colonnes précisent dans l'ordre : le nom ou la désignation normalisée de l'élément repéré ; la matière (matériau utilisé) ; au besoin des observations ou renseignements complémentaires utiles. 
Remarques : la CAO/DAO offre des possibilités de nomenclaturage automatique avec présentation personnalisée. L'ISO 7573 propose une variante avec repère ; nombre ; référence pièce; nom pièce ; désignation pièce ; observations - 6 colonnes. 

VII - Principaux traits

Le dessin industriel utilise de nombreux traits différents. Chaque trait a sa nature (continu, interrompu, mixte), une épaisseur (fort, fin) et est destiné à un usage donné ; exemple, cas de la norme NF EN ISO 128-20, figure 5. Les dispositifs CAO/DAO en propose une grande variété. Largeurs recommandées (ISO): 0,13 ; 0,18; 0,25; 0,35 ; 0,5 ; 0,7 ; 1 ; 1,4 ; 2. 

image.png

VIII - Écritures

- On doit utiliser en priorité des écritures normalisées. La norme NF EN ISO 3098-0 retient les types A et B de la norme ISO (l 'ancienne norme NF E 04-505 ne retenait que le type B et pas h = 1,8). Les types A et B ont même hauteur h. A est plus fin que le B. 
- Il faut préférer une écriture droite à une écriture penchée. La norme tolère une écriture penchée de 15° maximum vers la droite. En dessin manuel, les écritures sont le plus souvent réalisées avec des trace-lettres ; les systèmes par lettres transferts sont également utilisés. 
- Les dispositifs CAO/ DAO offrent une grande variété de caractères, permettent des écritures condensées, élargies, penchées, proposent des facilités pour centrer, aligner les textes ... 

image.png

image.png

IX - Formes usuelles : vocabulaire

image.png

       alésage* : trou de grand diamètre 

image.png

Représentation normalisée des filetages (ISO 6410-1) 

image.png

image.png

image.png

image.png

image.png

image.png

image.png

image.png

image.png

image.png

image.png

image.png